ROCHESTER - The Rochester City Council will hold a public hearing on Tuesday to allow public comment on the city's proposal to spend $1.3 million to help fund a 10,000 square foot countywide warming shelter on land near the county jail that former was the site of the Cocheco Valley Humane Society
Dover recently approved their $1.7 million for the project. Somersworth, like Rochester, has not yet voted.
The City of Rochester has scheduled a Special Meeting shortly after the Public Hearing to vote on whether the City Council will approve their portion of the costs, which would come from the unassigned fund balance, according to the City Council packet released on Thursday.
![]() |
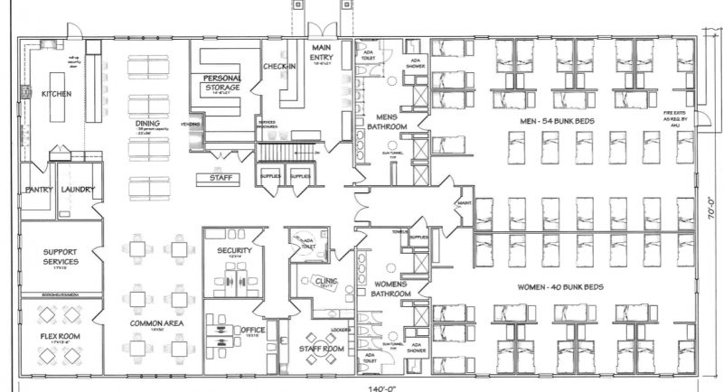
| Schematic shows a layout of the proposed warming center (Courtesy image) |
The unassigned fund balance is a sort of saving account the city accrues through fees and other moneys it collects, and can be used for unexpected expenses. It can also be used to lessen property taxes.
Because the money is coming from the unassigned fund balance it will take the council a two-thirds vote to push it through.
The countywide warming shelter would be used only during the winter, and would be opened upon severe cold or stormy weather, much like the Willand Warming Center.
The warming shelter would be able to accommodate almost 200 people, including a men's section with 54 bunk beds and the women's area with 40 bunk beds,
The facility would include client intake areas, a dining and common area, restrooms, a kitchen, pantry, laundry service area, staff offices, a clinical services area and storage.
The public hearing begins at 6 p.m. at Council Chambers at City Hall.
Data shows that the average occupancy of the Willand Warming Shelter during last year's stormy weather was around 50, however during a few sub-zero nights last winter it spiked to around 100.
The county is seeking commitment for the project no later than Dec. 31, they say, so demolition of the old Humane Society can be done during the winter. They then plan to have the new facility up and running by November.
Upon completion of construction, the City of Dover shall sell its building at 30 Willand Drive.
The cumulative cost for all three cities is around $3.5 million.









